Dialkové ovládanie hotovo. Vďaka Bohu a BMW za ETM a všeobecne za schémy. To je potom radosť robiť.
Po hľadaní vhodného modulu, padla voľba na BENE302, ktorý disponuje slušnými funkciami s možnosťou programovania intervalov:

- bene302.PNG (59.44 KiB) 1935 zobrazení

- bene302_1.PNG (124.06 KiB) 1935 zobrazení
Zapojenie nebolo zložité, všetky potrebné káble sú na jednom mieste - pod zadnou sedačkou, len som to chcel spraviť poriadne, tak to pár hodín zobralo. No a ako to je zapojené? Aby som sám nezabudol ako som to zapojil

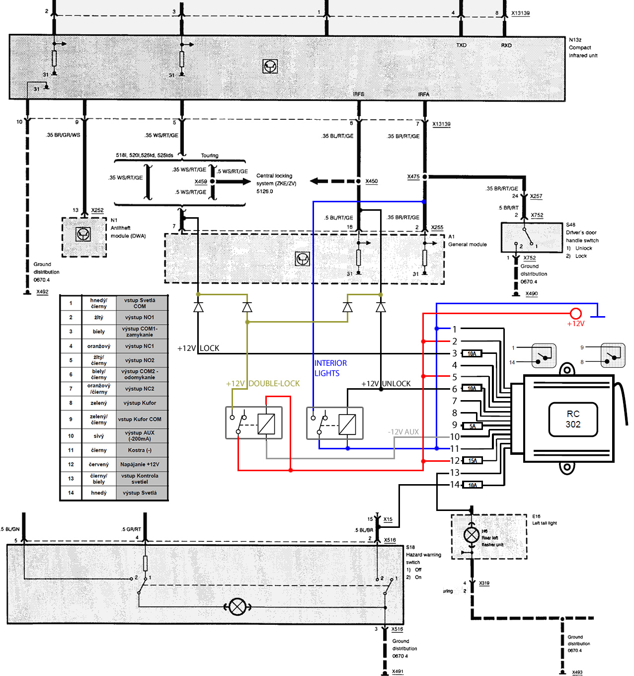
ak sa v tom budem v budúcnosti hrabať, tak som si to nakreslil:
Funguje to nasledovne:
- tlačidlo zamknúť - zamkne (drží impulz po dobu 15s, čo aktivuje zavretie okien)
- tlačidlo odomknúť - odomkne (impulz 0,8s) + cez dodatočné relé rozsvieti interiérové osvetlenie
- tlačidlo kufor - nevyužité
- tlačidlo odomknúť+kufor - aktivuje AUX výstup (impulz 0,8s) a cez druhé dodatočné relé spraví double-lock
Uvažoval som, hľadal plusy, mínusy, či sa má doublelock spravil hneď s uzamknutím, alebo nie....

, zatiaľ je to teda ovládané samostane. Čo je malou výhodou, že s origo klúčom sa dal spraviť doublelock len do 15s od uzamknutia, teraz ho viem spraviť aj neskôr.
Ovládanie smeroviek, je cez spínač výstražných svetiel - teda na ten istý pin, na ktorý sa po stlačení výstražných privedie zem, sa privádza zem z modulu DO a do DO je privedený signál zo žiarovky, ktorým si modul sleduje správny počet bliknutí. Teda jednotka si sama pri odomknutí odsleduje dve bliknutia.
Video a foto:

- Všetko pekne poupratovať.