Streda, 17. Marca 2010, 17:12
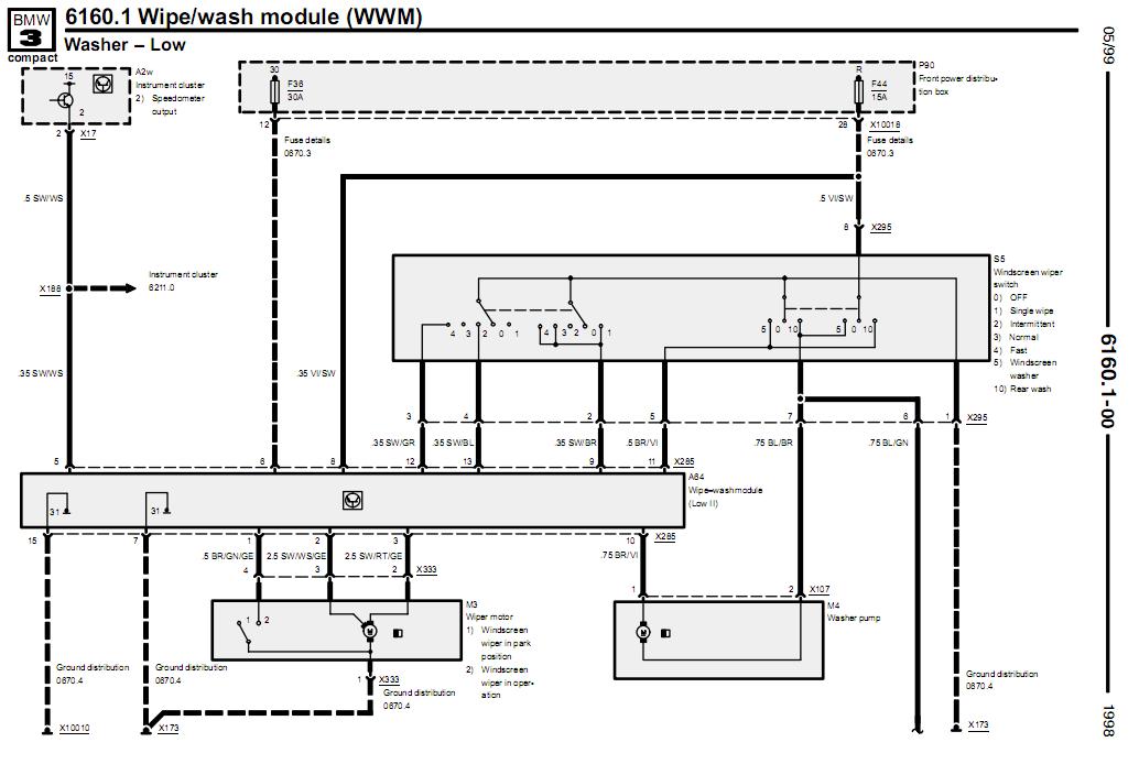
Po rozoberani som skusal zapnut stierace, zase nesli ani netuklo vo WI-WA module len v polohe 4( rychly chod)- ale neslo.
Skusal som niekolkokrat zapnut-vypnut zapalovanie........nic. Az o 2-3 minutky som nastartoval auto a uz zas sli stierace...........
Moj nazor: tym ze tuklo pri polohe 4 tak v prepinaci chyba nemoze byt, jedine ten modul. Neviem ako sa to sprava, resp. ako sa to sprava ked je modul zly......niekto skusenosti???
-
Prílohy
-

- WWM_schema
- WWM_modul.JPG (89.06 KiB) 1514 zobrazení